Skip to content
PRICING SUBJECT TO CHANGE DUE TO TARIFFS. CALL US FOR A QUOTE & SHIPPING RATE: (630) 325-4708
CALL US FOR AN OFFICIAL QUOTE & SHIPPING RATE: (630) 325-4708

Foundationless Heavy Duty Jib Crane - 1/4 Ton (500 lbs)

SKU 351F-500-8-8
Save 5% Save 5%
Original price $4,550.18
Original price $4,550.18 - Original price $10,987.80
Original price $4,550.18
Current price $4,316.90
$4,316.90 - $10,424.49
Current price $4,316.90
REQUEST A QUOTE
HOIST AND TROLLEY NOT INCLUDED IN PRICE
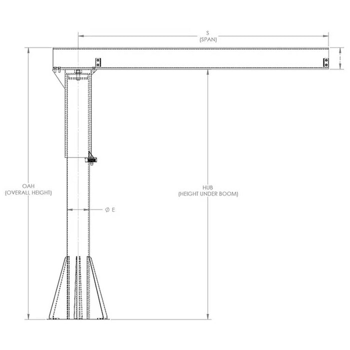
Heavy Duty Jib Crane - Foundationless

The model 351F heavy duty pillar base mounted jib crane is ideal for processes that involve heavy lifting and constant use throughout the day. Fully customizable, this self supporting 360 degree rotating jib crane mounts to the existing floor using manufacturer provided anchor bolts.

Benefits
  • Heavy duty assembly with reinforcing side plates
  • Full plate style gussets for maximum load distribution
  • Heavy duty precision tapered roller bearings for longevity and ease of rotation
  • Heavy duty adjustable roller cage with low friction bearings, adjustable tension bolts, and grease fittings
  • Anti tip angles prevent head removal from accidental impact and dislodgment
Capacity

500 lbs (1/4 ton)

It is recommended that foundationless jib cranes be mounted on reinforced concrete with a minimum depth of 6" avoiding any gaps, cracks, or expansion joints (within a given area, size of area to be determined by qualified engineer). Anchor Bolts must have a 4-1/2" minimum embedment.