Skip to content
PRICING SUBJECT TO CHANGE DUE TO TARIFFS. CALL US FOR A QUOTE & SHIPPING RATE: (630) 325-4708
CALL US FOR AN OFFICIAL QUOTE & SHIPPING RATE: (630) 325-4708

Heavy Duty Freestanding Jib Crane - 1/2 Ton (1,000 lbs)

SKU 351-1000-8-8
Save 5% Save 5%
Original price $3,450.91
Original price $3,450.91 - Original price $11,197.33
Original price $3,450.91
Current price $3,274.00
$3,274.00 - $10,623.28
Current price $3,274.00
REQUEST A QUOTE

SPECIFICATION SHEET (PDF)

HOIST AND TROLLEY NOT INCLUDED IN PRICE
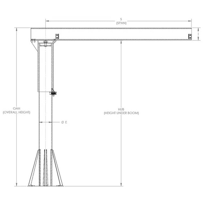
Heavy Duty Freestanding Jib Crane

The model 351 heavy duty pillar base mounted jib crane is ideal for processes that involve heavy lifting and constant use throughout the day. Fully customizable, this self supporting 360 degree rotating jib crane mounts to the floor using HSI's anchor bolts and recommended foundation.

Benefits
  • Heavy duty assembly with reinforcing side plates
  • Full plate style gussets for maximum load distribution
  • Heavy duty precision tapered roller bearings for longevity and ease of rotation
  • Heavy duty adjustable roller cage with low friction bearings, adjustable tension bolts, and grease fittings
  • Anti tip angles prevent head removal from accidental impact and dislodgment
Foundation
  • 4' x 4' x 4' (For Span Lengths 8 FT to 10 FT)
  • 4-1/2' x 4-1/2' x 4' (For Span Lengths of 12 FT)
  • 5-1/2' x 5-1/2' x 4' (For Span Lengths 14 FT to 18 FT)
  • 6' x 6' x 4' (For Span Lengths of 20 FT)
Capacity

1,000 lbs (1/2 ton)

Other Span Sizes and Capacities available. Contact for pricing and availability.